Pipe Earthing – Construction, Working, Advantages, and Applications

1️⃣ What is Pipe Earthing?

Answer:
Pipe Earthing is an earthing system in which a galvanized iron (G.I.) pipe is installed vertically in the ground to discharge electrical current into the earth safely.
It is used in both domestic and industrial installations.

Thank you for reading this post, don't forget to subscribe!

2️⃣ Construction of Pipe Earthing

Answer:
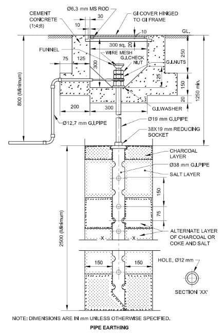
In Pipe Earthing, a G.I. pipe of 30mm–65mm diameter and about 275cm length is used.
The pipe is buried 2.5–3 meters deep in moist soil, surrounded by layers of charcoal and salt to maintain soil conductivity.


3️⃣ Standard Values of Earth Resistance

Answer (As per IS 3043:2010):

  • For Domestic Systems – Maximum Earth Resistance: 5 Ω (Ohms)
  • For Industrial Systems – Maximum Earth Resistance: 1 Ω (Ohms)

If the resistance exceeds these limits, the earthing system should be maintained immediately.


4️⃣ Working Principle of Pipe Earthing

Answer:
When a leakage current or fault current occurs in any electrical device, it passes safely into the earth through the pipe.
This prevents electric shock and protects equipment and users from damage.


5️⃣ Materials Required for Pipe Earthing

Answer:

  • G.I. Pipe (30mm–65mm diameter, 275cm long)
  • Charcoal (Carbon)
  • Salt
  • Water Funnel with Cover
  • G.I. Wire or Strip (for connection)

6️⃣ Advantages of Pipe Earthing

Answer:

  • Simple and low-cost earthing method
  • Durable and easy to maintain
  • Suitable for domestic and small industrial applications
  • Provides adequate protection even in moderately poor soil

7️⃣ Safety Tips for Effective Pipe Earthing

Answer:

  • Always use ISI-marked G.I. pipe and wire
  • Install the pipe at a depth of 2.5–3 meters
  • Ensure all connections are tight to avoid sparking
  • Check earth resistance periodically
  • Keep the pit covered and pour water regularly

8️⃣ Difference Between Pipe and Plate Earthing

Answer:

  • Pipe Earthing is low-cost and ideal for domestic use.
  • Plate Earthing is more efficient and used in large industrial areas.
  • Plate Earthing offers better soil stability, while Pipe Earthing’s performance depends on soil moisture.

9️⃣ Chemical Earthing vs Pipe Earthing

Answer:
In Chemical Earthing, chemical compounds are used instead of soil to retain permanent moisture.
It is modern, low-maintenance, and highly effective.
Pipe Earthing, on the other hand, is traditional and economical, but less effective in dry soil conditions.


🔟 Maintenance of Pipe Earthing

Answer:

  • Test the earth resistance every 6 months.
  • If resistance exceeds 5Ω (domestic) or 1Ω (industrial), add water, salt, and charcoal to the pit.
  • Keep the pipe and wire joints corrosion-free to ensure continuous conductivity.


🔹Introduction to Pipe Earthing

Pipe earthing is a cost-effective and reliable earthing technique in which a galvanized iron (G.I.) pipe is buried vertically in the ground to create a safe electrical connection with the earth.
This method is most commonly used in domestic, commercial, and small industrial installations, where the electrical load is typically below 10 kW.

The main purpose of pipe earthing is to safely carry leakage or fault current from the electrical system to the ground, preventing electric shocks and equipment damage.


What is Pipe Earthing?

In pipe earthing, a galvanized iron (G.I.) pipe is used as the main electrode.
This pipe is buried vertically in the ground, and all non-current-carrying metal parts of the electrical system are connected to it using a G.I. strip or wire.

The pipe provides a low-resistance path for leakage or fault current, allowing it to flow safely into the earth, thus preventing electric shocks and equipment damage.

Pipe Earthing Diagram

Complete labeled diagram of pipe earthing system showing all components and connections

🧱 Materials Required for Earthing Pipe

MaterialQuantity / DescriptionPurpose
G.I. PipeAbout 2.5 inches (65 mm) in diameter and 2.75 meters longActs as the main earthing electrode
CharcoalAround 20 kgIncreases soil conductivity
SaltAround 20 kgMaintains soil moisture and conductivity
G.I. Strip or WireAs per requirementConnects the earthing system to the electrical network
Flat lay photo of materials for pipe earthing — G.I. pipe, salt, charcoal, wire, funnel, bolts, and clamps arranged neatly.”

🕳️ Construction of Pipe Earthing-Pit Preparation

Excavation:
First, a pit about 3 meters deep and 0.5 meters wide is dug.
The soil should be moist or clayey to ensure better conductivity.

Pipe Installation:
The G.I. pipe is placed vertically inside the pit.
Small holes are made at the lower end of the pipe to allow easy flow of current and water into the soil.

Layering of Charcoal and Salt:
Alternate layers of charcoal and salt are filled around the pipe to maintain conductivity and soil moisture.

Connection:
A G.I. strip or wire is connected to the top of the pipe and brought to the surface, where it connects to the main earthing terminal.

Watering Arrangement:
A watering pipe and funnel are installed near the earthing pipe to pour water periodically and keep the soil moist.

Step-by-step construction process of pipe earthing with G.I. pipe, charcoal and salt layers

Pipe Earthing Preparation and Step-by-Step Installation Process

🔹 1. Pipe Preparation
Small holes are drilled along the G.I. pipe to allow soil moisture to move freely in and out of the pipe.
This helps maintain uniform moisture around the pipe, improving the overall conductivity of the earthing system.

A funnel is fitted at the top of the pipe to make it easier to pour water or any conductive solution inside whenever needed.
This step is known as the “Paving Stage”, which helps maintain moisture in the earthing system.

🔹 2. Placing the Pipe in the Pit
Place the pipe vertically at the center of the dug pit so that it remains in full contact with the surrounding soil.

Add a layer of charcoal around the pipe, followed by a layer of salt.
Repeat this layering process until the pit is completely filled.
These layers increase soil conductivity and maintain a low-resistance path for fault current.

🔹 3. Making Electrical Connections
Connect a G.I. strip or wire firmly to the pipe using clamps and bolts.
Bring this strip up to the surface and connect it to the main earthing point or the earth terminal of the electrical load.
Ensure that the connection is tight and secure to prevent any interruption in current flow.

🔹 4. Pouring Water
Pour water periodically through the funnel at the top of the pipe to keep the charcoal and salt moist.
This moisture maintains soil conductivity and reduces the earthing resistance.
Regular watering ensures the long-term efficiency and reliability of the earthing system.


⚡ Working Principle of Pipe Earthing

When a fault current occurs in any equipment or wiring, it travels through the earthing wire to the G.I. pipe.
From there, the current passes through the holes into the charcoal, salt, and surrounding soil, finally dissipating safely into the earth.

This ensures protection from electric shock and prevents damage to electrical appliances.

"Working principle of pipe earthing showing current flow to ground during electrical fault"

Standard Values of Pipe Earthing

🔹 Earth Resistance

The quality of an earthing system depends on how low its resistance is.
The lower the resistance, the safer and more effective the earthing system will be.

Application AreaPermissible Earth Resistance
Domestic SystemMaximum 5 Ohms (Ω)
Industrial SystemMaximum 1 Ohms (Ω)
Earth resistance standard values for domestic and industrial pipe earthing systems as per IS 3043:2010"

🔹 Standard Pipe Dimensions

As per IS 3043:2010, the following dimensions are recommended for pipe earthing:

  • Diameter: 38 mm to 65 mm
  • Length: Approximately 275 cm (2.75 meters)

Following these standards ensures that the earthing system is efficient, durable, and safe.

⚠️ Important Notes

  • Pipe earthing works best in moist soil conditions.
  • Its effectiveness decreases in dry or rocky soil.
  • In such cases, chemical earthing is preferred because it helps maintain consistent moisture and provides lower resistance for better performance.

Pipe Earthing vs. Plate Earthing

FeaturePipe EarthingPlate Earthing
CostLowHigh
MaintenanceEasyModerate
ConductivityGoodVery Good
Suitable ForHomes and Small IndustriesHeavy Industries
Depth Required2–3 meters3 meters or more

Maintenance of Pipe Earthing

Proper maintenance of pipe earthing ensures long-term safety and consistent electrical performance. Here are the key steps to maintain an efficient pipe earthing system:

  1. Regular Watering:
    Periodically pour water through the funnel connected to the pipe. This keeps the charcoal and salt layers moist, maintaining low resistance and good conductivity.
  2. Check Connections:
    Inspect all connections between the G.I. strip/wire and the pipe regularly. Tighten loose bolts and ensure there is no corrosion or rust on joints.
  3. Measure Earth Resistance:
    Use an Earth Tester periodically to measure the resistance value. For domestic systems, it should not exceed 5 Ω, and for industrial systems, it should be below 1 Ω.
  4. Refill Charcoal and Salt:
    Over time, the charcoal and salt layers may degrade or lose effectiveness. Refill or replace them every 6–12 months depending on soil conditions.
  5. Protect from Physical Damage:
    Ensure that the funnel, pipe top, and connection points are protected from mechanical damage, mud, or debris.
  6. Check Soil Moisture:
    Keep the soil around the earthing pit moist but not waterlogged. Excess water can damage the structure, while dryness increases resistance.
Complete Pipe Earthing Diagram

Important Safety Tips for Effective Earthing Pipe

To keep the pipe earthing system safe, reliable, and effective for a long time, it’s essential to follow the safety rules given below:


1️⃣ Use Standard Materials
Always use ISI-marked G.I. pipes, wires, and fittings as per IS 3043:2010 standards.
Low-quality or rusted materials reduce the effectiveness of earthing and can compromise safety.


2️⃣ Ensure Proper Depth
Install the pipe vertically at a depth of 2.5 to 3 meters in the ground.
This ensures that the pipe stays in contact with moist soil, providing better conductivity.


3️⃣ Select the Right Location
Choose a location where the soil remains moist.
Avoid placing the earthing near building foundations or in dry or rocky areas to maintain low resistance and high safety.


4️⃣ Tight and Secure Connections
All connections between the G.I. pipe and the earthing strip or wire should be tightened properly using clamps and bolts.
Loose connections can cause sparking, heating, or high resistance.


5️⃣ Avoid Mixing Different Metals
Never connect a copper wire directly to a G.I. pipe, as it can cause galvanic corrosion.
Always use the same metal or an appropriate connector.


6️⃣ Regular Testing
Periodically check the earth resistance using an Earth Tester.
If resistance exceeds 5 ohms (Ω) for domestic or 1 ohms (Ω) for industrial systems, perform maintenance immediately.


7️⃣ Keep the Pit Covered
Always keep the top of the earthing pit covered to prevent the entry of dust, rainwater, or insects, which could damage the system.


8️⃣ Maintain Moisture Level
Pour water through the funnel regularly to keep the soil moist.
Moist soil maintains a low-resistance path, allowing fault current to flow safely into the ground.


9️⃣ Label and Identify the Earth Point
Place a clear label or marking above the earthing pit for easy identification during inspection or repair.


🔟 Never Bypass Earthing
Never operate any electrical device without a proper earthing connection.
Doing so can lead to serious electric shocks or fire hazards.


🌍 Advantages of Pipe Earthing

Low-cost compared to other earthing methods
Easy installation anywhere
Low maintenance, only requires regular watering
Ideal for homes and small industries (below 10 kW)
Provides reliable safety with low resistance path for fault current


🏠 Applications of Pipe Earthing

🏡 Homes and offices
🏭 Small industries and factories
⚡ Distribution transformers
🔌 Generator and motor systems
💡 Street and public lighting systems


FAQ

  1. What is Pipe Earthing?


    Pipe Earthing is an earthing method in which a galvanized iron (G.I.) pipe is installed vertically into the ground.
    Layers of salt and charcoal are filled around the pipe to safely discharge electrical current into the earth.

  2. What materials are used in Pipe Earthing?


    The main materials used in Pipe Earthing are:
    G.I. Pipe (Main electrode)
    Charcoal
    Salt
    G.I. Strip or Wire
    Funnel and Water Pipe

  3. What should be the depth of Pipe Earthing?


    Generally, the pipe is buried 2.5 to 3 meters deep so that it remains in contact with moist soil and maintains good conductivity with the earth.

  4. What is the standard Earth Resistance for Pipe Earthing?


    According to IS 3043:2010 standards:
    For domestic systems – Maximum 5 ohms (Ω)
    For industrial systems – Maximum 1 ohms (Ω)

  5. What are the advantages of Pipe Earthing


    It is the cheapest and simplest earthing method.
    Suitable for domestic and small industrial applications.
    Low maintenance and long life.
    Safely carries fault current into the ground.

🧠 Conclusion

Pipe earthing is a simple, economical, and safe earthing method best suited for domestic and small industrial applications.
It effectively carries fault current into the ground, protecting people and electrical equipment from shocks and damage.

With the use of good-quality G.I. pipes, moist soil, and proper installation, this system can remain reliable and safe for many years.